Our craftsmanship adds value. Our people add warmth.

Blue and White Kitchen

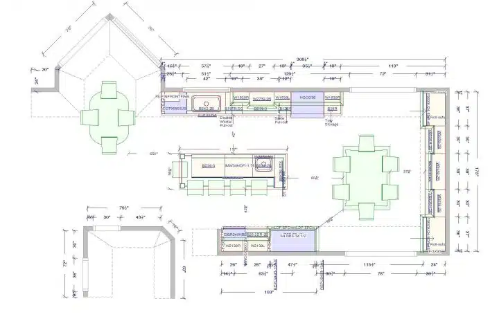
Kitchen Footprint Expanded

Our homeowner’s purchased their new home to be near family.  The house location was perfect but the kitchen needed to be larger and so a kitchen expansion was planned.  Having remodeled her sister’s home in the same neighborhood she decided to give us a call to design their new kitchen. Designs were created by our Certified Kitchen and Bath Designer Jan Hagenberger and the client loved them!  This gave birth to the new blue and white kitchen renovation.  We can create three-dimensional colorized versions of your kitchen like the one below to help you envision what your new space will look like.

 

Accessing Adjacent Space

Do you need an expanded kitchen?  Choosing to keep within the footprint of your home yet expand space can save you much money when remodeling.  Are there rooms that are infrequently used with your family’s lifestyle? These provide a great way to add square footage to spaces where you regularly gather.  For many families the kitchen is one of the most utilized rooms in the house and accessing a room adjacent can be the perfect answer.  Our interior design team can assess your home and discuss your design priorities to create the perfect solution to any space problem in your home.

In our client’s home, the original dining room became part of the kitchen by removing a wall and enabling the addition of a new bank of cabinets.  To keep the area for dining that would be lost we designed space in front of the new cabinets for a table and chairs.  Removing the wall expanded the kitchen footprint and added additional natural light through the original windows turned French Door.  The French door would soon be accessible to a brand new deck. Since the wall to be removed held the air conditioning and heating ductwork decisions were made to install an additional new system in the attic and create a two-zone HVAC system.

Blue and White  Kitchen

Does your kitchen feel bright and airy?  Many tasks are completed in this all-important space and lighting is of the utmost importance.  The homeowner chose to replace the cream cabinets and dark countertops with white cabinets and Caesarstone tops.   This created a light and bright kitchen as natural light beautifully reflects from these lighter colors.  Under-cabinet LED lighting was also installed providing extra task lighting where needed.

Would you choose a white kitchen?   You can add interest with a coordinating color on the island as they did with the charcoal blue island cabinet.  When you accessorize your wardrobe you add the finishing touches. The icing on this beautiful blue and white theme was the tile backsplashes.  The backsplash chosen over the sink and cooktop was Gray Crystal glass subway tile in an offset pattern to add color.  Coordinating with the cool blue painted island is the multi-colored mosaic tile backsplash in the dining area.  By adding pops of color this traditional white kitchen is unique and interesting.

Additional changes to the kitchen included placing the oven and cooktop in the expanded perimeter cabinet run.   This leaves more room for prep work, homework, and dining.   Also, the hardwood floors in the expanded area were refinished to match the kitchen offering continuity between the two spaces.

Would you like to learn more about kitchen remodeling?  You can check out our kitchen remodeling services page?  We can also provide interior design services to help you find that special look that is uniquely you.  Our Design Studio can make your kitchen remodel an easy and fun experience with a one shop stop for cabinets, tops, hardware, tile, and much more.