Small Kitchen and Dining Room Combinations
Homeowners can increase the footprint of your kitchen without breaking through the exterior walls of the home. Deciding to remove walls within the home to increase the square footage of the kitchen can include making the dining room apart of the kitchen expansion. In today’s culture, the dining room is a seldom-used space for many families and stands empty collecting dust until the next holiday event. Does yours stay empty most of the time? You can utilize rooms in your home to increase the size of a family gathering space, like the kitchen, much more economically than constructing an addition.
Our Eldersburg MD homeowner chose to increase the footprint of their kitchen by removing the wall to the adjacent dining room. The man of the house was also the chef and he wanted to prepare his delicious meals in an efficiently laid out kitchen with plenty of countertop workspace. The homeowners’ sizeable family gathered often for meals, so a dining room was necessary for their lifestyle. Owings’s solution was to remodel the living room open to the original dining room into the new dining room. The removal of the adjacent dining room wall enlarged the kitchen by 121 square feet and enabled the construction of a larger island. This kitchen dining room expansion provided room for the addition of a commercial size Wolf stove along with many more cabinets and counter space.
Original and New Design Plans
- New Design Layout
- Original Layout
Our family chef chose a layout that would also enable him to move through the kitchen with ease and planned for the refrigerator placement and an additional trashcan at the end of the island. This enabled the family to move through daily functions without interrupting the chef in meal preparation. Their original kitchen plan hemmed the kitchen in by a peninsula and trapped everyone in the same area at the same time. Not an efficient layout for this cook and his family which is what motivated the remodel. The home was a relatively spacious one so adding to the footprint was not necessary and this dining room conversion was just the fix. Many homeowners find that staying within the footprint of their present home is doable and most definitely more affordable than constructing an addition.
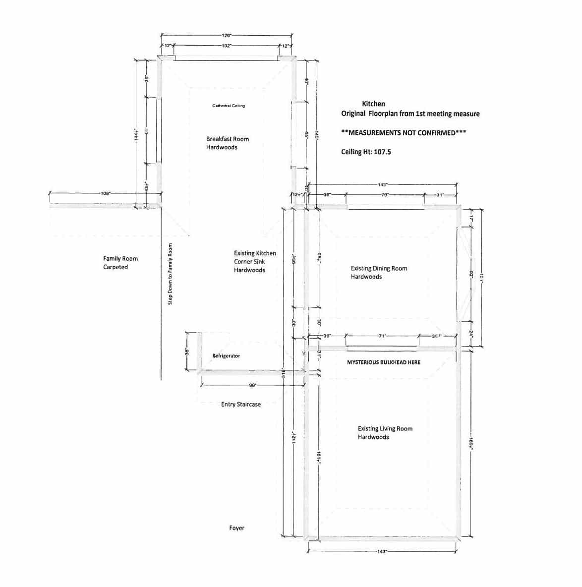
Before Kitchen Dining Room Remodel
Kitchen Style
The kitchen style chosen for this family remodel has a European look and feel which is timeless. The new Koch cabinets are maple slab fronts painted Oyster and include many bells and whistles in cabinet accessories. Caesarstone countertops are throughout the kitchen in the color Woodlands. Engineered stone is one of the most durable materials for countertops and a great choice for a busy kitchen. To aid in clean up a large farm sink was selected for cleaning large pots and pans and was placed in front of a double window to offer a fantastic view for the cleanup crew. This was the one window kept from the original dining room. The other double window was closed in to offer a space for more cabinets and the 48 inch Wolf stove.

Creating some of the European styles is the backsplash in Mohawk Vintage Carlsbad Beige Mosaic and the Red Oak hardwood floors in varying widths 3, 4 and 5-inch planks. The true crowning jewel of this European look is the custom copper exhaust hood. What may not be common knowledge for homeowners desiring a commercial stove is that to properly exhaust the heat from the appliance you need to install a powerful exhaust system. These type of exhaust systems will tend to be used in a commercial kitchen which would occupy a larger footprint than most residential kitchens. The power behind the exhaust system will draw out such a large quantity of oxygen that it can be dangerous to the family’s health. Our solution was to include a Fresh Air Make-up system to replenish the oxygen in the home. Not your standard design option but most necessary when choosing a commercial stove. (Make-up Air is designed to “make up” the air in your interior space that has been removed due to process exhaust fans. This type of HVAC solution pulls in fresh, tempered air from outside your home to replace existing air that cannot be recirculated.)
After Kitchen Dining Room Remodel
Our homeowners are thrilled with the final design and construction. We have accomplished the task of creating a great flow for this busy working kitchen and still keep the charm desired by our homeowners and their family.
Another kitchen expansion within the footprint of the home can be seen here.