Our craftsmanship adds value. Our people add warmth.

Remodeling Kitchen & Bath

Kitchen and Bath Remodeling

Our clients lived in a historic neighborhood in Catonsville.  Their home built at the turn of the century has a great deal of charm located among mature trees with a large yard as only part of its beauty.  The entire house is custom built and was everything the homeowner was looking for to raise their family.  As beautiful as the home and landscaped setting, it was necessary for remodeling the kitchen and bath.  Our design team went to work to create a plan that fit the family’s needs and wants.

Remodeling Challenges

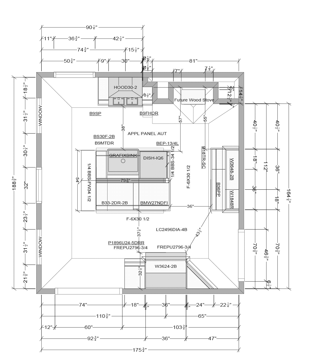
Since the home was built long ago the layout was not conducive to the modern family.  One such kitchen remodeling challenge was the two doorways and two windows.  This limited the number of cabinets that were in the original design and prohibited the homeowner from increasing the storage and counter space needed.  Also, an antique wood-burning stove in its own alcove was to stay as part of the new design. Entryways to the powder room and parlor were also worked around and were widened to give a more open look and feel.   Soaring high ceilings in this home draw the eye to make the room look more expansive but also are challenging when choosing cabinetry.  As you can see by the before and after the family opted for a light and bright space.  Also, a new island offers more storage and counter space.  What a difference!

Before Kitchen Remodeling

After Kitchen Remodeling

Bathroom Remodeled

The bathrooms that were designed in the early 1900s were not of the spa variety.  They were functional and small.  Our homeowners wanted to remodel their bathroom while staying within the footprint of the space.  Also choosing to incorporate a walk-in shower and separate bathtub.  Originally the bathroom had a tub-shower combination.  His and her sinks were needed and a single vanity was to be replaced and a double vanity was included in the plan.  This required moving the toilet but due to the drainpipe needed to stay very close to the present location.  To say the least, this bathroom remodel was spatially challenging.  Want to learn more about remodeling your bathroom see our post on Small Bathroom Ideas.

Before Bathroom Remodeling

After Bathroom Remodeling

All in all the remodeling of the kitchen and bath created a home that this modern family can enjoy for years to come.  The charm of the historic house was not affected negatively and the homeowner can enjoy the beautiful custom woodwork, high ceilings, hardwood floors, and much more.   Do you have an older home that needs updating?  We have over thirty-eight years of experience remodeling in the various neighborhoods of the Baltimore metro area which includes many homes just like our clients.  Give us a call and let us show you what we can do for you to make your home everything your family needs!